Locatie
Brussel
Van fragmentatie naar flow
Als accounting- en consultingbedrijf helpt Moore ondernemers hun dromen waar te maken. Voor hun eigen kantooromgeving in Brussel, was de droom helder: een functionele, warme en verbindende werkplek die voelt als één geheel – ondanks de fysieke opsplitsing van het kantoor over verschillende zones.


De kracht van de cirkel
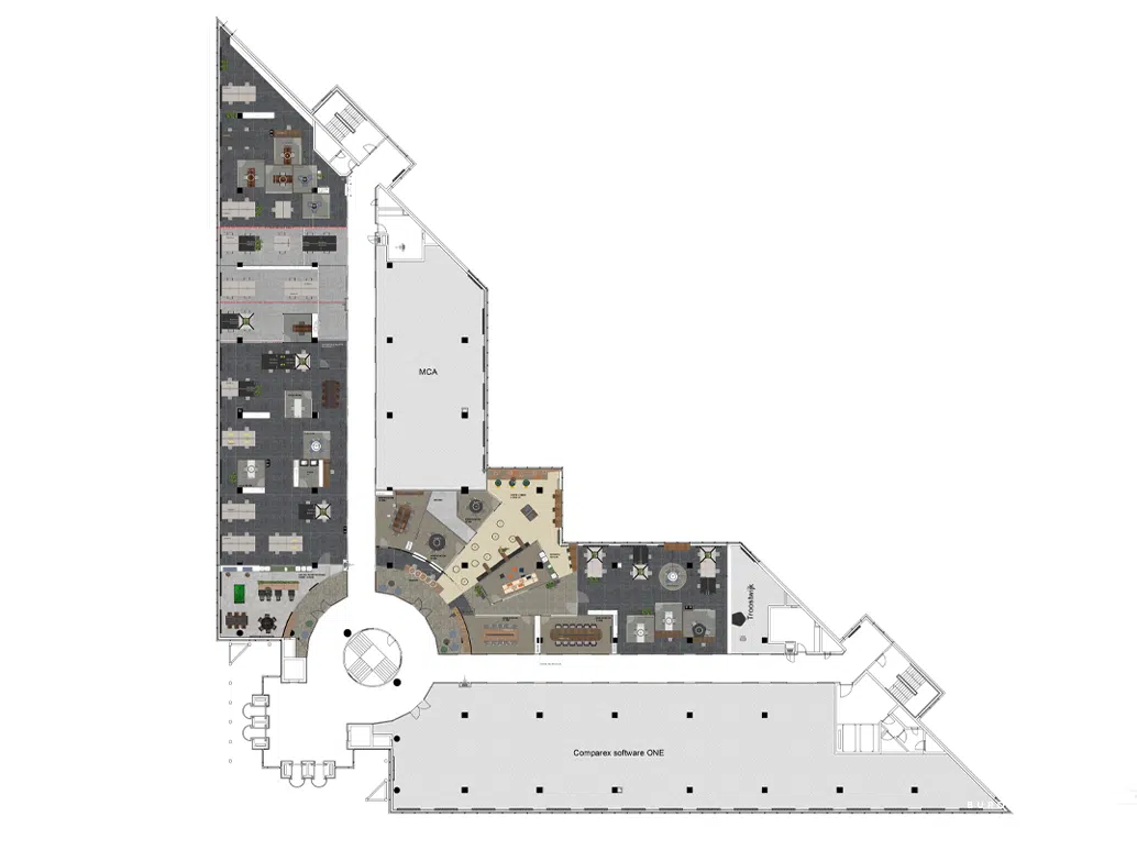
Het ontwerp vertrekt vanuit een architecturaal gegeven: de cirkel als verbindend element. De cirkel – al aanwezig in de structuur van het gebouw – werd de rode draad doorheen het interieur. Fragmenten van de cirkel keren terug in tapijt, wanden, zitbanken en de onthaalbalie. Die herhaling creëert samenhang én een gevoel van herkenning tussen ruimtes die fysiek van elkaar gescheiden zijn.

Slimme ingrepen, zachte overgangen
Structuur en flow gaan hand in hand. De bestaande kolommen – ooit een obstakel – kregen een nieuwe functie als ankerpunten voor houten boxen met uiteenlopende invullingen: van focusruimte tot coffee corner, van ingebouwde kasten tot plug-in zones. De boxen zorgen niet alleen voor rust en oriëntatie, ze creëren ook natuurlijke overgangen tussen werkzones, meeting rooms en informele plekken.


VAN CONCEPT NAAR KANTOOR
CONCEPTONTWIKKELING
INDELINGSPLAN
SPACEPLANNING
MOODBOARD
REALISATIE
CONCEPTONTWIKKELING
Het vertrekpunt van het ontwerp was een verspreid kantoor over drie aparte zones. Vanuit de architecturale cirkel in het gebouw creëerden we een verbindend element dat als rode draad door het hele ontwerp loopt. Een slimme vertaling van vorm naar functie, met een duidelijke identiteit als resultaat.
INDELINGSPLAN
We tekenden een heldere indeling uit waarin werkzones, vergaderruimtes en sociale plekken logisch en visueel met elkaar verbonden zijn. De boxenstructuur – gebouwd rond bestaande kolommen – bracht structuur én flexibiliteit in de ruimte.
SPACEPLANNING
Bij de spaceplanning hielden we rekening met verschillende werkbehoeften: focus, overleg, informeel contact en ontspanning. Zit/sta-werkplekken, multifunctionele benches, gestoffeerde zitnissen en dynamische plug-in zones zorgen voor een ergonomische en futureproof werkomgeving.
MOODBOARD
Het moodboard vormde de visuele vertaling van de gewenste sfeer: warm en professioneel met een natuurlijke toets. Zachte materialen, warme houttinten en tactiele stoffen zetten de toon voor een interieur waarin rust, vertrouwen en connectie centraal staan. Het moodboard gaf richting aan de materiaalkeuzes en legde de basis voor een coherent totaalbeeld.
REALISATIE
Van materiaalkeuze tot afwerking: elk detail draagt bij aan een warm, functioneel en licht interieur. Het resultaat? Een kantooromgeving waar mensen zich goed voelen – en waar de cirkel helemaal rond is.
Expo 58: een subtiele knipoog
De meetingruimtes kregen een thematische toets geïnspireerd op Expo 58, met zwart-wit beelden op glazen wanden en vergaderzalen die verwijzen naar landen uit die tijd. Geen retro overload, wél een tijdloos eerbetoon dat past binnen de strakke vormentaal en het transparante karakter van het ontwerp.


Van koffie tot concentratie
Van formeel tot informeel, van geconcentreerd tot sociaal: elke zone is afgestemd op het moment. Zo biedt de multifunctionele ruimte naast een warme lunchplek ook ruimte voor korte werkmomenten, spontane gesprekken of even uitblazen met zicht op het Atomium. Door verschillende zithoogtes, stoffen zitnissen, planten en decoratieve verlichting ontstaat een gelaagd en uitnodigend geheel.

Kleuren, materialen en akoestiek in harmonie
Warm hout, blauwe accenten, groen marmer en zacht stoffering: het kleuren- en materialenpalet straalt rust én persoonlijkheid uit. Slim akoestisch comfort en strategische verlichting maken het plaatje compleet. En ja, dat comfortgevoel voel je meteen bij binnenkomst.
Ook op zoek naar een kantoor zoals Moore?
Wij helpen je graag om jouw ideale werkplek te creëren. Of het nu gaat om een enkele ruimte of een volledige inrichting – ons team staat voor je klaar met advies, ontwerp en uitvoering op maat.
Heb je een vraag of wil je graag eens samenzitten? Laat hieronder jouw gegevens na en we contacteren jou zo snel mogelijk.
Of contacteer ons via info@buroproject.be of bel naar +32 (0)53 605 646.


Staat uw eigen project hier binnenkort te blinken?
Kom uw plannen bespreken in onze Concept Place, een toonaangevende toonzaal die wij elke dag gewoon gebruiken als ons kantoor. En dat wérkt fantastisch!
Realisaties
Interesse in een (her)inrichting?
We praten er graag over met jou om vragen te beantwoorden of om een offerte te maken. Via een fysieke meeting bij jou op kantoor, in één van onze Concept Places in Aalst, Knokke of digitaal.











